
2021年4月1日(木)、福岡市早良区藤崎に、福岡県初のデイトナハウスのガレージアパートGLB「BLACK BASE FUJISAKI(ブラックベース藤崎)」がオープンします。
ブラックベース藤崎の場所は、福岡県福岡市早良区藤崎1-14-20です。
デイトナハウス(DAYTONA HOUSE✕LDK)は、様々な住宅やガレージの魅力を特集してきた雑誌「DAYTONA(デイトナ)」が、建築プロデュース会社「LDK」とタッグを組み、ホンモノの住宅をプロデュースしたプロジェクトです。
デイトナハウスは、単一パーツを連結させるだけで、個人住宅はもちろんのこと、ガレージハウス、賃貸住宅、店舗などなど、どんな建築にも対応します。
デイトナハウスは、単一パーツを連結させるだけで、個人住宅はもちろんのこと、ガレージハウス、賃貸住宅、店舗などなど、どんな建築にも対応します。
1Fはガレージや店舗、オフィスとしてご利用いただけます。

この日は、ハーレーダビッドソン福岡のご協力により、ハーレーダビッドソンの車両が展示されていました。



1F部分。

バイクのガレージのレイアウト例。


ハーレーダビッドソンでは、「ハーレーライダー子ども見守り隊」の活動も展開しています。

ポルシェ 718ケイマンGT4も展示されていました。


アパートガレージの魅力が感じられる空間です。

2Fへ続く鉄製の螺旋階段。

2Fへ。

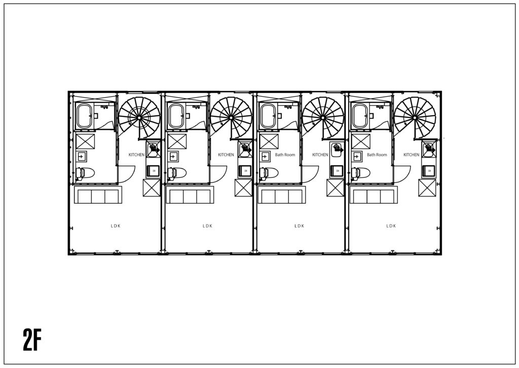
ブラックベース藤崎 2F
2Fにキッチンスペース、トイレ、バスルームがあります。

南向きで採光性が高い窓です。


天井も高めです。


螺旋階段近く、右にキッチンスペース、左にトイレ、バスルームがあります。

3Fへ。

ブラックベース藤崎 3F


3Fはワンルームの広い空間です。



3Fの窓から広い眺望を得ることができます。



ブラックベース藤崎 空室状況


BLACK BASE FUJISAKI
(ブラックベース藤崎)
(ブラックベース藤崎)
所在地:福岡県福岡市早良区藤崎1-14-20
賃料:16万5000円(02・03号室)/16万7000円(04号室)/16万8000円(01号室)
共益費:3000円
面積:74.40㎡〜76.17㎡
間取:1LDK+ビルトインガレージ
敷金:1か月(事業用は2か月)
礼金 :2ヶ月
総戸数:4戸(3階建)
構造:軽量鉄骨造3階建て
向き:南向き
ガス:都市ガス
インターネット:個別契約および設置
ペット:飼育可(大型犬可)
入居時期:2021年4月上旬予定
その他徴収する費用:ペット飼育の際は礼金+1か月、家賃保証、火災保険必須、事業用は別途消費税








